Vorig schooljaar is CBS de Verrekijker samen met een groep ouders en leerlingen begonnen met een project voor ons schoolplein.
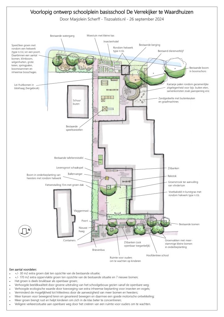
Hoe maken we ons schoolplein (nog) aantrekkelijker, maar ook groener. Die plannen zijn inmiddels uitgewerkt door Marjolein Scherff in een ontwerp van hoe e.e.a zou passen. Dank aan Marjolien voor je mooie ontwerp!
Met dit ontwerp gaan we dit schooljaar verder aan de slag. Natuurlijk is het belangrijk dat we weten of het haalbaar is. Kees Eikelboom zal hiervoor ook informeren bij de gemeente.
Via de basisschool wordt u op de hoogte gehouden van de nieuwe ontwikkeling omtrent dit project!
